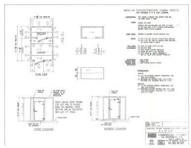
Over 100k Walk-in’s Built Since 1967 with 100% On-Time Shipping
Commercial Cooling is now offering ready to ship Budget Boxes for immediate purchase.
One of each in stock NOW! Contact us to purchase.